項目名稱:Burton Place
項目位置:Lindfield
項目類型:別墅
價格區間:279-295萬澳幣
交房時間:土地:預估2019年年初
項目位置:Lindfield
項目名稱:Burton Place
項目類型:別墅
面積區間:土地:302平米
物業:270.37-271.48平米
價格區間:279-295萬澳幣
交房時間:土地:預估2019年年初
建筑:預估12個月后

共13棟獨棟別墅
Burton Place獨立街道入口,自成獨立空間
足夠的車庫Setback,每戶四個停車位
原木以及金屬外觀,現代設計

社區規劃
項目共分5期開發,前3期均為公寓和Townhouse,均已完工;
第四期將于明年年初完工;
Burton Place為最后一期!


未來規劃
1、Lindfield Learning Village學習中心
NSW政府有史以來較大公立學校投資 的重要組成部分,重金打造全新型綜合 學校,從幼兒園到12年級共可容納 2000名學生。
現代化的硬件設施,優良的教育環境。
2019年開始招生(2019年已招滿,350人)
距離Burton Place 步行5分鐘

2、Lindfield Village Green (LVG)
距離Burton Place 3.3千米,6分鐘車程。
Village Green 廣場占地:2700平米,包括地下庫,可解決火車站停車問題。
Village Green酒店設有咖啡廳或餐廳以及可供各種用途的公共廣場。它將被設計用于社交聚會和步行和騎自行車者的輕松運動,并與火車站相連。完成后,Village Green可以舉辦市場,戶外電影,現場音樂和其他表演, 以使該地區更加生動。

相關房產推薦:悉尼公寓別墅丨墨爾本公寓別墅丨布里斯班公寓別墅丨珀斯公寓別墅丨黃金海岸公寓別墅
相關業務辦理:澳洲留學移民辦理丨澳洲房產貸款稅務辦理
Lindfield位于悉尼北區,低密度富人區,距離悉尼中央商業區(CBD)約13公里25分鐘車程。距離Chatswood約3公 里,兩站火車,7分鐘車程。距離西邊是麥考瑞公園和麥考 瑞大學6.5公里,13分鐘車程。

該區域超過63.8%的居民擁有學士學位以上學歷(悉尼 平均數37.6%),主要職業是高管,大學教授和公務員。 Lindfield區的家庭年收入中位數達到$121,836 (悉尼家 庭年收入中位數$108,734)

Lindfield的交通十分方便,火車站的出入口在Lindfield Avenue大道
在Chatswood火車站轉車,可前往Epping‐‐19分鐘
中途會經過Macquarie University‐‐11分鐘
Pacific Highway是貫通Linfield的 主要公路‐‐20分鐘就可到達悉尼市中心。

Killara—1站火車
Chatswood—2站火車
North Sydney—7站火車
Wynard—9站火車

教育重鎮,資源豐富
小學:
Lindfield Public School
Chatswood Public School
中小學:
Knox Grammar
Ravenswood School for girls

中學:
Chatswood High School
North Sydney Boys High School
North Sydney Girls High School
Pymbles Ladies’s College

購物
Sydney CBD 15km 開車25分鐘
Lindfield Shopping Precinct 1.8km 開車4分鐘
Roseville Shopping Precinct 2km 開車5分鐘
Chatswood shopping Precinct 3km 開車7分鐘
Macquarie shopping centre 7km 開車13分鐘


休閑娛樂
位于悉尼北區,保持著傳統生活方式,以獨立屋 為主,綠化率高,環境清幽。
650m可步行到Edenborough Park
距離著名國家公園Lane Cove National Park 4.5千米,6分鐘車程。
距離Killara高爾夫球場3公里,開車3分鐘
距離Roseville高爾夫球場4.7公里,開車8分鐘
距離FIFA認證2星足球場 Charles Bean Oval步行170m


市場信息


街道高度

閑坐庭院

別墅剖面圖

落地窗設計,視野開闊,美景一覽無遺

硬朗的廚房線條碰撞柔和的陽光

簡約而不簡單的大氣衛浴

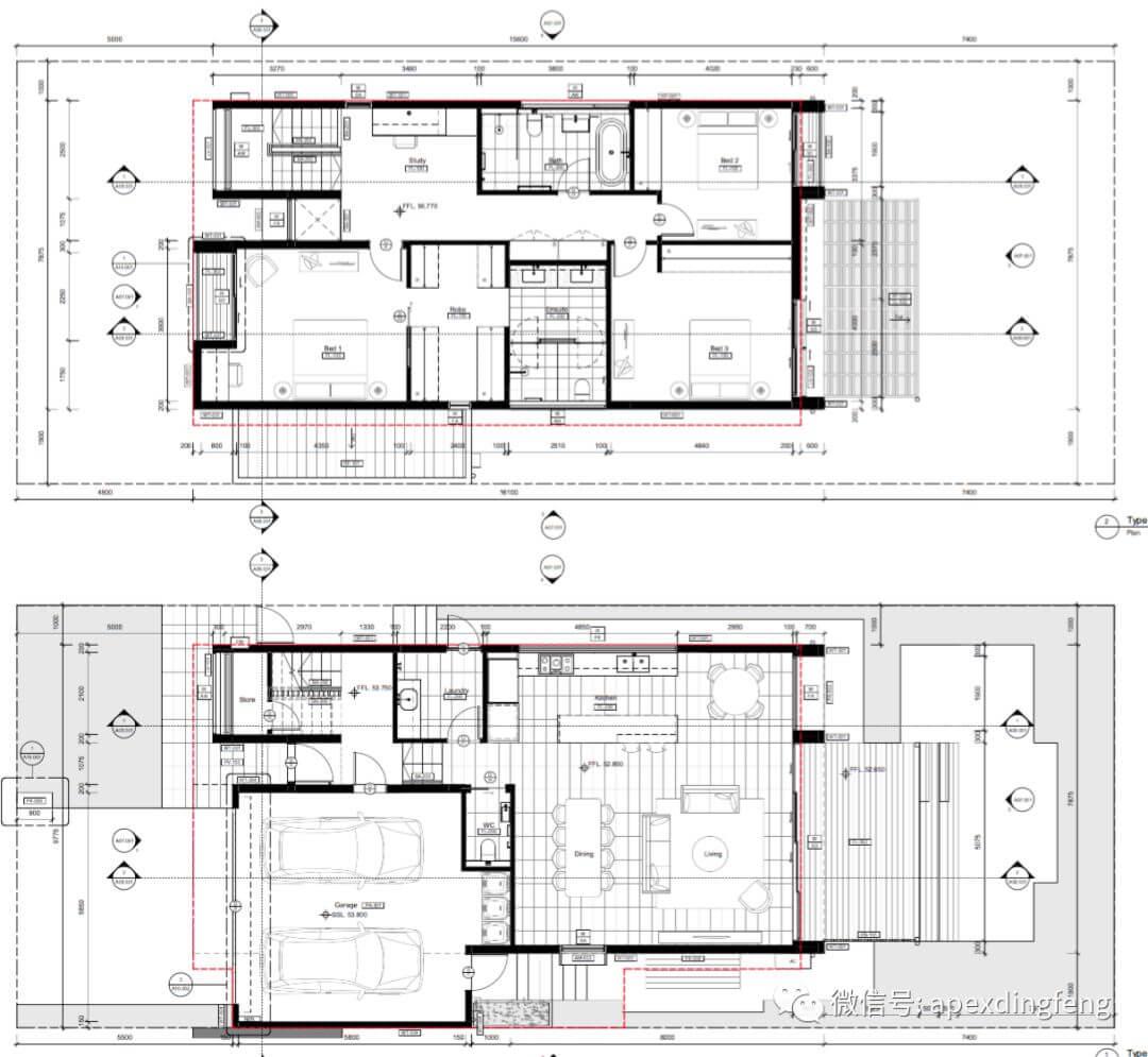
戶型設計
Type 5.1
土地面積:320平米
物業面積:270.37平米
戶型:3房+Study

Type 5.2
土地面積:320平米
物業面積:271.48平米
戶型:3房+Flexi+Study
